شقة سكنية - UN11F3R02
هيكل المشروع

يوني
سلسلة يوني | UNI SERIES أول سلسلة عقارية متكاملة في دمياط الجديدة
سلسلة يوني (UNI SERIES) هي أول سلسلة عقارية متكاملة من تطوير شركة اركس للتطوير العقاري في دمياط الجديدة، تضم 170 وحدة تجارية وإدارية وسكنية بمساحات تبدأ من 15 م² وتصل إلى 165 م² عبر مجموعة من المباني المتميزة، تُعيد سلسلة يوني تعريف مفهوم التطوير العقاري الذكي من خلال تصميم مبتكر ومفاهيم جريئة تجمع بين الوظيفة والجمال، لتقدم رؤية جديدة ومؤثرة في قلب سوق عقارات دمياط الجديدة، مع سعر متر سكني تنافسي يبلغ 35,000 جنيه.
عرض جميع تفاصيل المشروعيوني 11
المرافق والخدمات
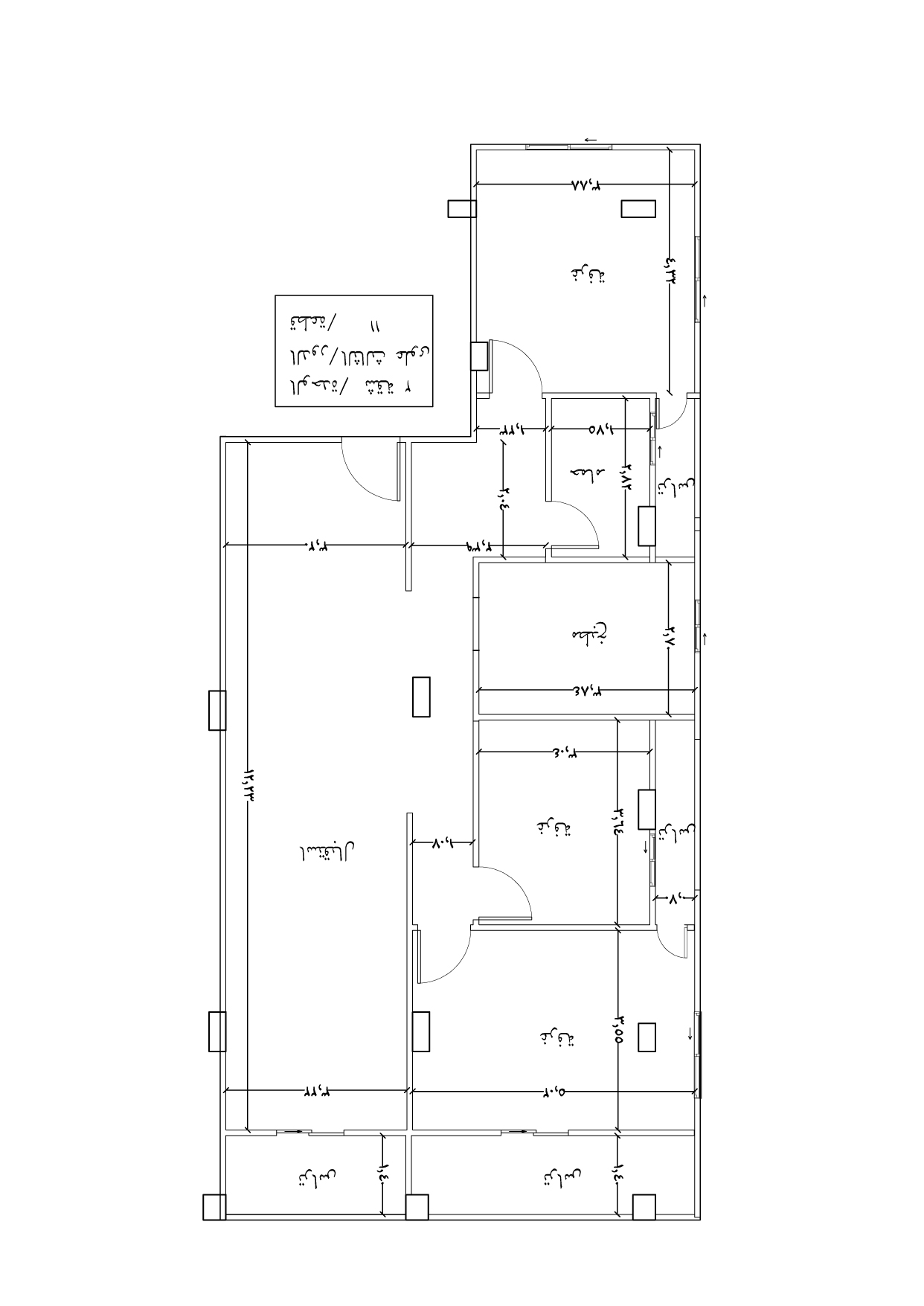
نظرة عامة على الوحدة
كود الوحدة: UN11F3R02
تقع هذه الشقة السكنية المميزة داخل مبنى يوني 11 ضمن سلسلة مشروعات يوني بمدينة دمياط الجديدة، وتقدم تجربة سكنية متكاملة تجمع بين الموقع الحيوي والتصميم العصري والمساحات المدروسة بعناية.
تأتي الوحدة بمساحة 150 متر مربع في الدور الثاني، وهي وحدة مكتملة وجاهزة للسكن، ما يجعلها خيارًا مثاليًا للراغبين في الانتقال الفوري أو الاستثمار العقاري في واحدة من المدن الساحلية المتنامية في مصر.
تتميز الشقة بتصميم معماري حديث وواجهات أنيقة تعكس الطابع العصري للمشروع، إلى جانب توزيع داخلي عملي يوفر أقصى درجات الراحة والخصوصية لجميع أفراد الأسرة. كما أن موقعها داخل المشروع يمنح السكان بيئة هادئة وخدمات قريبة تسهّل تفاصيل الحياة اليومية.
يبلغ سعر المتر 35,000 جنيه مصري، وهو سعر تنافسي مقارنة بمستوى التطوير والخدمات في المنطقة.
الوحدة مناسبة بشكل خاص لـ:
- العائلات الصغيرة
- الأزواج حديثي الزواج
- الباحثين عن استثمار عقاري مستقر في دمياط الجديدة
المشروع من تطوير ARX Development، وهي شركة عقارية تمتلك خبرة تتجاوز 20 عامًا في السوق العقاري المصري مع سجل كبير من المشروعات السكنية والتجارية التي تركز على الجودة والتصميم العصري.
وتقع الوحدة في New Damietta، وهي مدينة ساحلية حديثة تأسست لتوفير مجتمعات عمرانية متطورة وتضم العديد من الخدمات والمرافق والبنية التحتية المتكاملة.
تفاصيل الوحدة
- كود الوحدة: UN11F3R02
- المبنى: يوني 11
- النوع: شقة سكنية
- الدور: الثاني
- المساحة: 150 م²
- الحالة: مكتمل
- سعر المتر: 35,000 جنيه مصري
- المطور العقاري: ARX Development
الأسئلة الشائعة
ما مساحة الشقة UN11F3R02؟
المساحة الإجمالية للوحدة تبلغ 150 متر مربع.
كم يبلغ سعر المتر في يوني 11؟
يبلغ سعر المتر 35,000 جنيه مصري.
ما حالة الوحدة؟
الوحدة مكتملة وجاهزة للسكن.
لمن تناسب هذه الشقة؟
تناسب العائلات الصغيرة والأزواج حديثي الزواج، كما تعد خيارًا جيدًا للاستثمار العقاري.
من المطور العقاري للمشروع؟
المطور هو ARX Development، إحدى شركات التطوير العقاري التي تمتلك خبرة طويلة في السوق المصري.
السعر يبدأ من
5,250,000 EGP
حاسبة الدفع
احسب أقساطك الشهرية
خطط الوحدة

الموقع
الاتجاهGoogle Maps API Key Required
Please add your Google Maps API key to continue
NEXT_PUBLIC_GOOGLE_MAPS_API_KEY=your_keyAdd this to your .env.local file
دمياط الجديدة
يوني
المستندات
تطور العمل والجدول الزمني
البناء is on track
Progress Timeline
الحفر
100%جاري تجهيز الأساسات
Last update: dec 28, 2025
البناء
65%مباني قيد التطوير
Last update: dec 28, 2025
التشطيبات
0%الأعمال النهائية قبل الانتهاء
Last update: dec 28, 2025





