مكتب إداري - UN26F2A06
هيكل المشروع

يوني
سلسلة يوني | UNI SERIES أول سلسلة عقارية متكاملة في دمياط الجديدة
سلسلة يوني (UNI SERIES) هي أول سلسلة عقارية متكاملة من تطوير شركة اركس للتطوير العقاري في دمياط الجديدة، تضم 170 وحدة تجارية وإدارية وسكنية بمساحات تبدأ من 15 م² وتصل إلى 165 م² عبر مجموعة من المباني المتميزة، تُعيد سلسلة يوني تعريف مفهوم التطوير العقاري الذكي من خلال تصميم مبتكر ومفاهيم جريئة تجمع بين الوظيفة والجمال، لتقدم رؤية جديدة ومؤثرة في قلب سوق عقارات دمياط الجديدة، مع سعر متر سكني تنافسي يبلغ 35,000 جنيه.
عرض جميع تفاصيل المشروعيوني 26
المرافق والخدمات
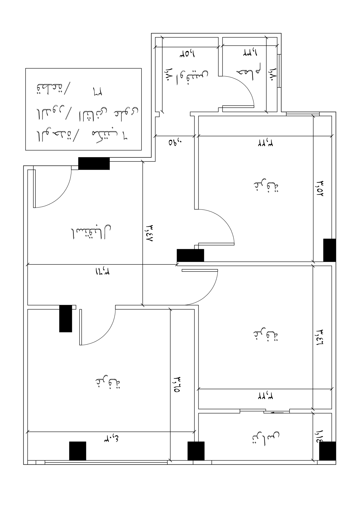
نظرة عامة على الوحدة
كود الوحدة: UN26F2A06
تقع هذه الوحدة الإدارية داخل مبنى يوني 26 ضمن سلسلة مشروعات يوني في مدينة دمياط الجديدة، وتُعد فرصة مميزة للشركات الباحثة عن مقر عمل احترافي في موقع حيوي يتمتع ببنية تحتية متطورة وبيئة أعمال متكاملة.
تأتي الوحدة بمساحة 77 متر مربع في الدور الأول، وهي وحدة مكتملة وجاهزة للاستخدام، مما يوفر إمكانية بدء النشاط فورًا دون الحاجة إلى أعمال تشطيب إضافية. كما يتميز المكتب بتصميم عملي يحقق أقصى استفادة من المساحة، مع واجهات أنيقة تعكس طابعًا احترافيًا مناسبًا لمختلف الأنشطة الإدارية.
توفر الوحدة بيئة عمل مرنة يمكن تكييفها بسهولة لتناسب مجموعة متنوعة من الاستخدامات مثل الشركات المتوسطة، مراكز التدريب، أو مكاتب المحاسبة، مع تشطيبات راقية تضمن مستوى عالٍ من الجودة والراحة.
يقع المكتب داخل مشروع متكامل الخدمات، مما يسهل الوصول إلى المرافق الأساسية ويعزز من كفاءة التشغيل اليومية، بالإضافة إلى موقعه المميز في دمياط الجديدة التي تُعد من المدن الواعدة استثماريًا.
يبلغ سعر المتر 65,000 جنيه مصري، وهو سعر تنافسي يعكس القيمة الاستثمارية للوحدة من حيث الموقع والتصميم وجودة التنفيذ.
تفاصيل الوحدة
كود الوحدة: UN26F2A06
المبنى: يوني 26
النوع: مكتب إداري
الدور: الأول
المساحة: 77 م²
الحالة: مكتمل
سعر المتر: 65,000 جنيه مصري
المطور العقاري: ARX Development
المشروع من تطوير شركة ARX Development، وهي شركة تطوير عقاري تمتلك خبرة قوية في السوق المصري، وتقدم مشروعات تجمع بين التصميم العصري والجودة العالية.
وتقع الوحدة في مدينة دمياط الجديدة، إحدى المدن الساحلية الحديثة التي تتميز بتخطيط عمراني متطور وبنية تحتية متكاملة، ما يجعلها خيارًا مثاليًا للاستثمار الإداري وتحقيق عوائد مستقرة.
الأسئلة الشائعة
ما مساحة المكتب الإداري UN26F2A06؟
المساحة الإجمالية للوحدة تبلغ 77 متر مربع.
ما سعر المتر في يوني 26؟
سعر المتر هو 65,000 جنيه مصري.
ما حالة الوحدة؟
الوحدة مكتملة وجاهزة للاستخدام.
ما الأنشطة المناسبة لهذا المكتب؟
مناسب لشركة متوسطة، مركز تدريب، أو مكتب محاسبة.
من المطور العقاري للمشروع؟
المطور هو ARX Development.
السعر يبدأ من
5,005,000 EGP
حاسبة الدفع
احسب أقساطك الشهرية
خطط الوحدة

الموقع
الاتجاهGoogle Maps API Key Required
Please add your Google Maps API key to continue
NEXT_PUBLIC_GOOGLE_MAPS_API_KEY=your_keyAdd this to your .env.local file
دمياط الجديدة
يوني
المستندات
تطور العمل والجدول الزمني
البناء is on track
Progress Timeline
الحفر
100%جاري تجهيز الأساسات
Last update: dec 28, 2025
البناء
65%مباني قيد التطوير
Last update: dec 28, 2025
التشطيبات
0%الأعمال النهائية قبل الانتهاء
Last update: dec 28, 2025





