مكتب إداري - UN27F2A06
هيكل المشروع

يوني
سلسلة يوني | UNI SERIES أول سلسلة عقارية متكاملة في دمياط الجديدة
سلسلة يوني (UNI SERIES) هي أول سلسلة عقارية متكاملة من تطوير شركة اركس للتطوير العقاري في دمياط الجديدة، تضم 170 وحدة تجارية وإدارية وسكنية بمساحات تبدأ من 15 م² وتصل إلى 165 م² عبر مجموعة من المباني المتميزة، تُعيد سلسلة يوني تعريف مفهوم التطوير العقاري الذكي من خلال تصميم مبتكر ومفاهيم جريئة تجمع بين الوظيفة والجمال، لتقدم رؤية جديدة ومؤثرة في قلب سوق عقارات دمياط الجديدة، مع سعر متر سكني تنافسي يبلغ 35,000 جنيه.
عرض جميع تفاصيل المشروعيوني 27
المرافق والخدمات
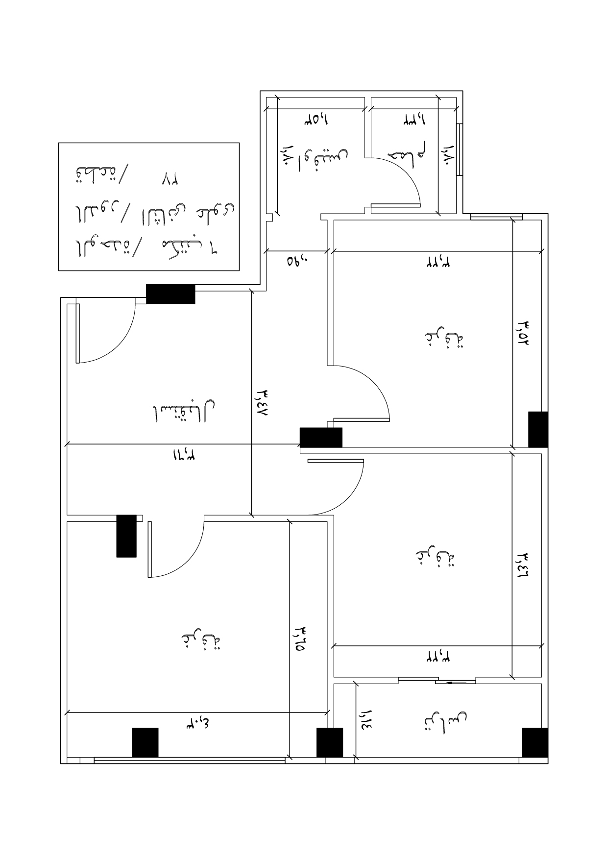
نظرة عامة على الوحدة
كود الوحدة: UN27F2A06
تقع هذه الوحدة الإدارية داخل مبنى يوني 27 ضمن سلسلة مشروعات يوني في مدينة دمياط الجديدة، وتُعد فرصة مثالية للراغبين في الاستثمار أو امتلاك مقر إداري حديث داخل مشروع متكامل يتميز بموقع حيوي ونمو مستمر.
تأتي الوحدة بمساحة 77 متر مربع في الدور الأول، وهي وحدة تحت الإنشاء، مما يمنح فرصة مميزة للاستفادة من الأسعار الحالية التنافسية مع تحقيق عائد استثماري قوي عند اكتمال المشروع. يتميز المكتب بتصميم عملي يحقق الاستخدام الأمثل للمساحة، إلى جانب واجهات عصرية تعكس بيئة عمل احترافية مناسبة لمختلف الأنشطة.
توفر الوحدة مساحة مرنة تناسب العديد من الاستخدامات الإدارية مثل الشركات المتوسطة، مراكز التدريب، أو مكاتب المحاسبة، مع تخطيط ذكي يساهم في تنظيم بيئة العمل ورفع كفاءة الأداء اليومي.
يقع المشروع في موقع متميز بمدينة دمياط الجديدة، مع توافر بنية تحتية متكاملة وخدمات متنوعة تسهّل إدارة الأعمال وتدعم استقرار النشاط الإداري.
يبلغ سعر المتر 65,000 جنيه مصري، وهو سعر يعكس القيمة الاستثمارية المستقبلية للوحدة في ظل التطور المستمر للمنطقة وزيادة الطلب على الوحدات الإدارية.
تفاصيل الوحدة
كود الوحدة: UN27F2A06
المبنى: يوني 27
النوع: مكتب إداري
الدور: الأول
المساحة: 77 م²
الحالة: تحت الإنشاء
سعر المتر: 65,000 جنيه مصري
المطور العقاري: ARX Development
المشروع من تطوير شركة ARX Development، وهي شركة تطوير عقاري تقدم مشروعات حديثة تجمع بين الجودة والتصميم العصري لتلبية احتياجات السوق.
وتقع الوحدة في مدينة دمياط الجديدة، إحدى المدن الساحلية الحديثة التي تتميز ببنية تحتية متطورة وتخطيط عمراني متكامل، ما يجعلها خيارًا مثاليًا للاستثمار الإداري وتحقيق عوائد مستقرة.
الأسئلة الشائعة
ما مساحة المكتب الإداري UN27F2A06؟
المساحة الإجمالية للوحدة تبلغ 77 متر مربع.
ما سعر المتر في يوني 27؟
سعر المتر هو 65,000 جنيه مصري.
ما حالة الوحدة؟
الوحدة تحت الإنشاء.
ما الأنشطة المناسبة لهذا المكتب؟
مناسب لشركة متوسطة، مركز تدريب، أو مكتب محاسبة.
من المطور العقاري للمشروع؟
المطور هو ARX Development.
السعر يبدأ من
5,005,000 EGP
حاسبة الدفع
احسب أقساطك الشهرية
خطط الوحدة

الموقع
الاتجاهGoogle Maps API Key Required
Please add your Google Maps API key to continue
NEXT_PUBLIC_GOOGLE_MAPS_API_KEY=your_keyAdd this to your .env.local file
دمياط الجديدة
يوني
المستندات
تطور العمل والجدول الزمني
البناء is on track
Progress Timeline
الحفر
100%جاري تجهيز الأساسات
Last update: dec 28, 2025
البناء
65%مباني قيد التطوير
Last update: dec 28, 2025
التشطيبات
0%الأعمال النهائية قبل الانتهاء
Last update: dec 28, 2025





