مكتب إداري - AU1F2A45
هيكل المشروع

أورا
يقع Aura Mall في امتداد شارع الصعيدي القديم، في قلب الحي الثاني، مباشرة أمام مستشفى مصر (أكبر مستشفى في الدلتا) ومدرسة زهرة المدائن. كما أنه قريب من فندق Point 11 وعلى الشارع الرئيسي المؤدي إلى منطقة النوادي
عرض جميع تفاصيل المشروعأورا مول
المميزات
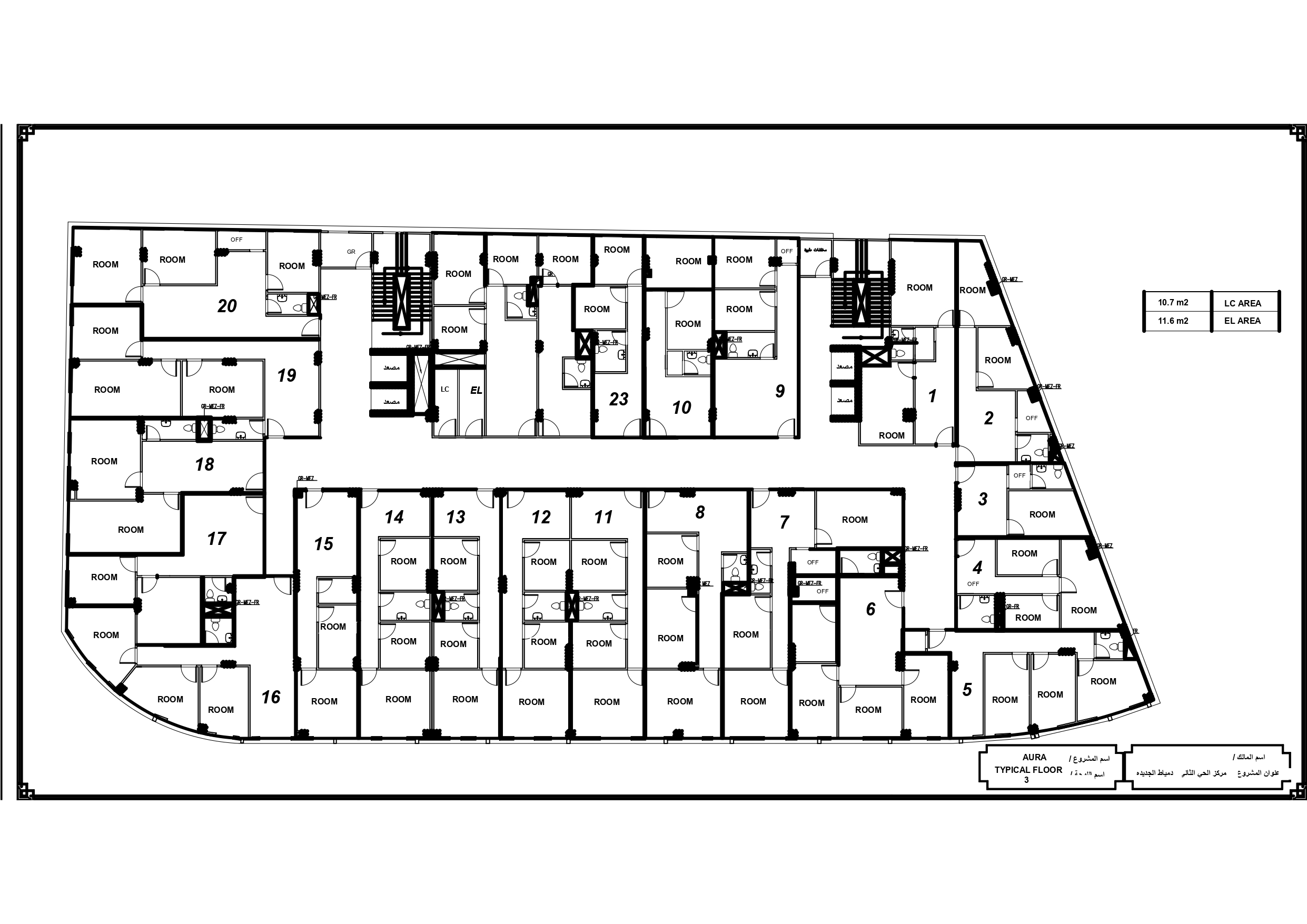
غرف النوم
5
الحمامات
2
غرف المعيشة
2
نوع التشطيب
سوبر لوكس
نظرة عامة على الوحدة
يمثل أورا مول فرصة استراتيجية لامتلاك وحدة تجارية أو إدارية للبيع داخل مشروع مصمم لتعظيم العائد الاستثماري.
الموقع المختار بعناية داخل دمياط الجديدة يضمن لك تدفقا مستمر للعملاء، بينما يحقق تنوع المساحات مرونة تشغيلية تناسب مختلف الأنشطة التجارية والطبية والإدارية.
يعتمد المشروع على تخطيط تجاري مدروس يوازن بين الكثافة التشغيلية وقوة العلامات التجارية داخل المول، ما يعزز من استقرار النشاط ونمو قيمته السوقية بمرور الوقت.
للحصول على تفاصيل الأسعار، المساحات المتاحة، وأنظمة السداد، تواصل مع فريق أركس للتطوير العقاري واستكشف أفضل فرصة لشراء وحدة تجارية بعائد مستدام.
تواصل معنا الآن وامتلك وحدتك في قلب المستقبل!
السعر يبدأ من
2,622,000 EGP
حاسبة الدفع
احسب أقساطك الشهرية
خيارات التمويل
استكشف خطط الدفع المرنة مع شركائنا المصرفيين
خطط الوحدة

الموقع
الاتجاهGoogle Maps API Key Required
Please add your Google Maps API key to continue
NEXT_PUBLIC_GOOGLE_MAPS_API_KEY=your_keyAdd this to your .env.local file
دمياط الجديدة
أورا
المستندات
معدل التحويل
قيمة البناء
EGP 0
القيمة الحالية
EGP 0
زادت قيمة الوحدة بنسبة 0.0% منذ بدء البناء



