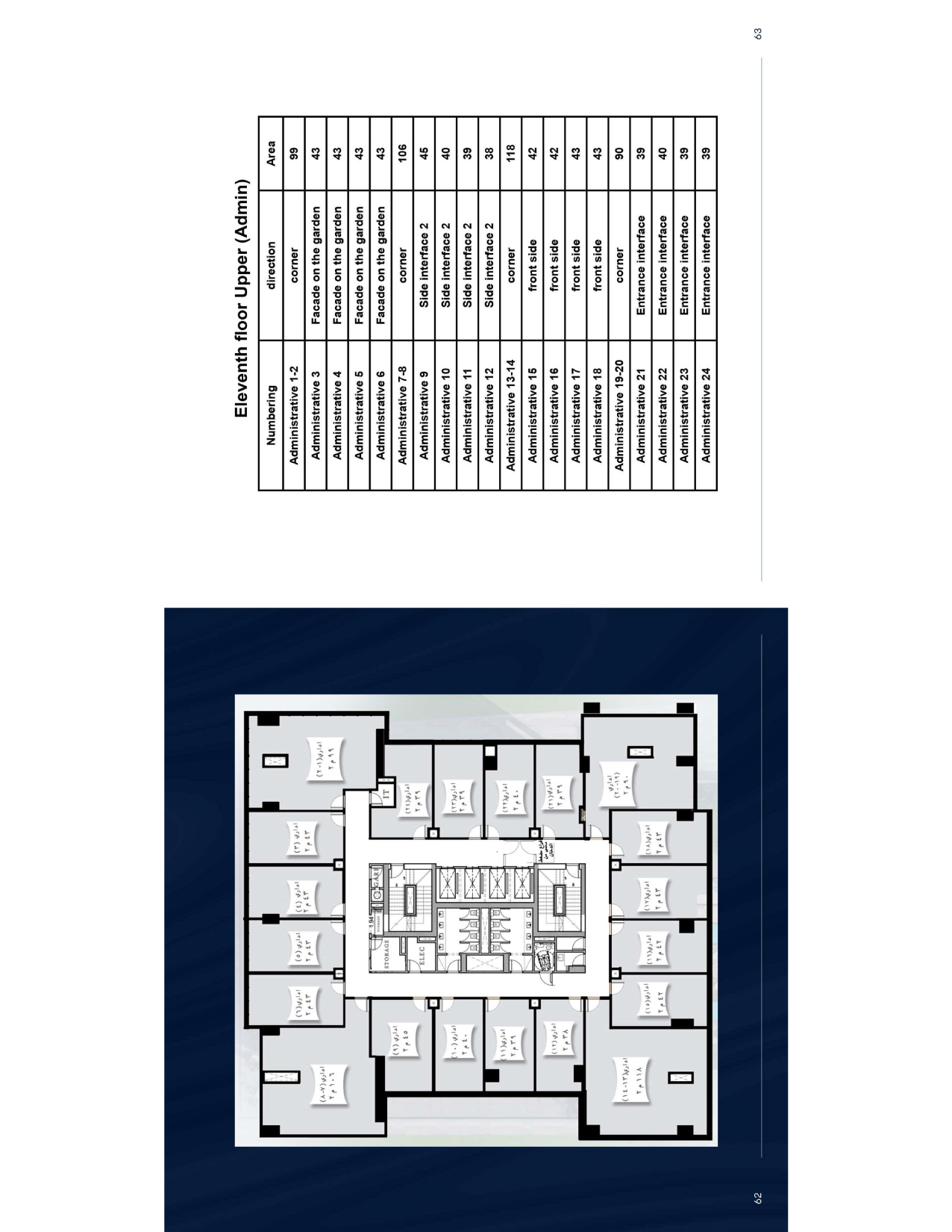
مكتب إداري - KE1F11A15
هيكل المشروع

برج كينترو
برج كينترو هو مشروع متعدد الاستخدامات يضم وحدات تجارية وإدارية، صُمم وفقًا لأحدث أساليب العمارة الحديثة وأنظمة البناء الذكية الصديقة للبيئة.
حصل كينترو تاور على شهادة من استشاري متخصص بدراسة مقاومة الرياح، والتي أكدت صلابته وجودته كبرج مقاوم للرياح، وهو ما يمثل ميزة مهمة للمستثمرين
عرض جميع تفاصيل المشروعكينترو تاور
المميزات
غرف النوم
3
الحمامات
2
غرف المعيشة
1
نوع التشطيب
نصف تشطيب
نظرة عامة على الوحدة
فرصة استثنائية لامتلاك وحدة إدارية في مشروع يوني
ابدأ أعمالك من قلب مشروع يوني الحيوي، في موقع استراتيجي يمنحك حضورًا قويًا ومكانة مميزة لنشاطك الإداري.
تصميمات عصرية بواجهات أنيقة ومساحات مرنة تناسب مختلف الأنشطة والشركات، مع تخطيط عملي يوفّر بيئة عمل احترافية ومريحة.
تشطيبات عالية الجودة وبنية تحتية متكاملة تضمن لك أداء تشغيلي سلس واستثمار آمن.
استفيد من بيئة عمل نشطة وكثافة سكانية مرتفعة تعزز فرص النجاح والتوسع.
لا تضيع فرصة الاستثمار في مشروع واعد يجمع بين الموقع المتميز والعائد الاستثماري القوي والنمو المستدام.
احجز وحدتك اليوم، وانطلق بأعمالك إلى مستوى جديد مع أركس للتطوير العقاري!
السعر يبدأ من
3,780,000 EGP
حاسبة الدفع
احسب أقساطك الشهرية
خيارات التمويل
استكشف خطط الدفع المرنة مع شركائنا المصرفيين
خطط الوحدة

الموقع
الاتجاهGoogle Maps API Key Required
Please add your Google Maps API key to continue
NEXT_PUBLIC_GOOGLE_MAPS_API_KEY=your_keyAdd this to your .env.local file
العاصمة الاداريةالجديدة
برج كينترو
المستندات
معدل التحويل
قيمة البناء
EGP 1,260,000
القيمة الحالية
EGP 3,780,000
زادت قيمة الوحدة بنسبة 200.0% منذ بدء البناء



