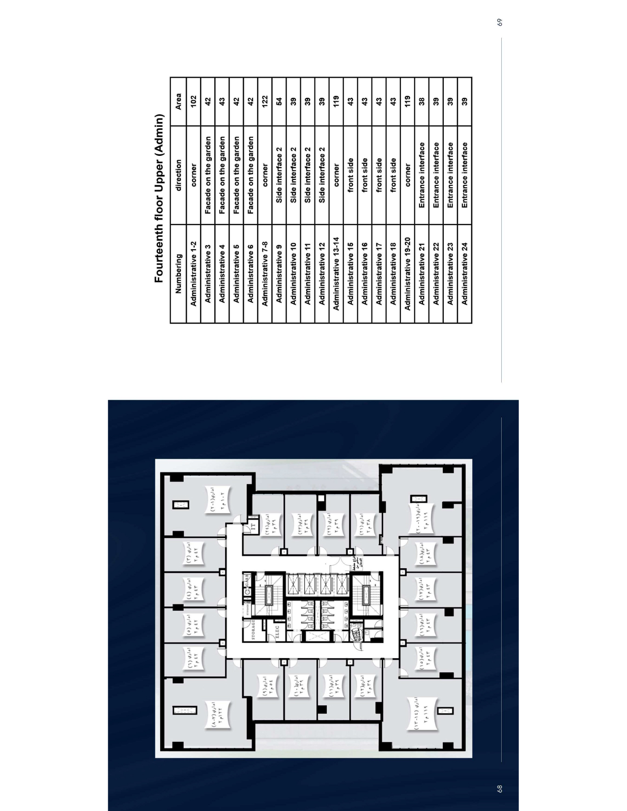
مكتب إداري - KE1F14A19-20
هيكل المشروع

برج كينترو
برج كينترو هو مشروع متعدد الاستخدامات يضم وحدات تجارية وإدارية، صُمم وفقًا لأحدث أساليب العمارة الحديثة وأنظمة البناء الذكية الصديقة للبيئة.
حصل كينترو تاور على شهادة من استشاري متخصص بدراسة مقاومة الرياح، والتي أكدت صلابته وجودته كبرج مقاوم للرياح، وهو ما يمثل ميزة مهمة للمستثمرين
عرض جميع تفاصيل المشروعكينترو تاور
المميزات
غرف النوم
3
الحمامات
4
غرف المعيشة
3
نوع التشطيب
نصف تشطيب
نظرة عامة على الوحدة
استثمر بثقة وامتلك وحدتك الإدارية في مشروع كينترو تاور، أحد أبرز المشروعات الإدارية التي تجمع بين الموقع المتميز والتصميم العصري في قلب منطقة حيوية نابضة بالحركة، وجودك في كينترو مش بس عنوان راقي لشركتك، لكنه خطوة استراتيجية تعزز من انتشار نشاطك وتدعم نموه وسط بيئة أعمال قوية ومتكاملة.
الوحدات مصممة بواجهات زجاجية حديثة ومساحات عملية مرنة تناسب المكاتب الإدارية، الشركات، العيادات ومختلف الأنشطة الخدمية، مع استغلال ذكي للمساحات يضمن أعلى كفاءة تشغيلية وأفضل عائد استثماري، كما يتميز المشروع بتشطيبات عالية الجودة، أنظمة أمن متطورة، مصاعد حديثة، وإدارة احترافية توفر لك بيئة عمل منظمة ومريحة من أول يوم.
اختار المساحة المناسبة لطموحك، وابدأ استثمارك في برج إداري يمنحك حضور قوي وفرص نمو حقيقية داخل مشروع واعد.
وحدتك في كينترو تاور هي بداية نجاح أكبر، احجز وحدتك الآن.
السعر يبدأ من
10,710,000 EGP
حاسبة الدفع
احسب أقساطك الشهرية
خيارات التمويل
استكشف خطط الدفع المرنة مع شركائنا المصرفيين
خطط الوحدة

الموقع
الاتجاهGoogle Maps API Key Required
Please add your Google Maps API key to continue
NEXT_PUBLIC_GOOGLE_MAPS_API_KEY=your_keyAdd this to your .env.local file
العاصمة الاداريةالجديدة
برج كينترو
المستندات
معدل التحويل
قيمة البناء
EGP 3,570,000
القيمة الحالية
EGP 10,710,000
زادت قيمة الوحدة بنسبة 200.0% منذ بدء البناء



