شقة سكنية - MI10F1R04
هيكل المشروع

ميراچ
ميراچ في قلب دمياط الجديدة، حيث تتحقق الطموحات وتتجسد الفرص، تبرز سلسلة ميراج كفرصة استثمارية لا تفوت
موقـع اسـتراتيجي مثالـي: تقـع فـي الحـي السـادس، بجـوار الحـي المتميـز ودار مصـر والمدرسـة اليابانيـة، ممـا يجعلهـا نقطـة انطلاق رائعـة لطموحاتكـم الاستثمارية.
تصميـم ذكـي: تتكـون السلسـلة مـن 8 قطـع تـم تصميمهـا بعنايـة فائقـة، تجمـع بيـن العناصـر الســكنية والتجاريــة، كل وحــدة مصممــة لتلبيــة احتياجاتكــم بشــكل مثالــي.
عوائـد اسـتثمارية مسـتدامة: انطلقـوا معنـا فـي هـذه الرحلـة الاستثمارية، حيـث تفتـح سلسـلة ميـراج أبوابًا لفـرص اسـتثمارية قويـة تضمـن لكـم عوائـد مسـتدامة علـى المـدى الطويـل.
عرض جميع تفاصيل المشروع
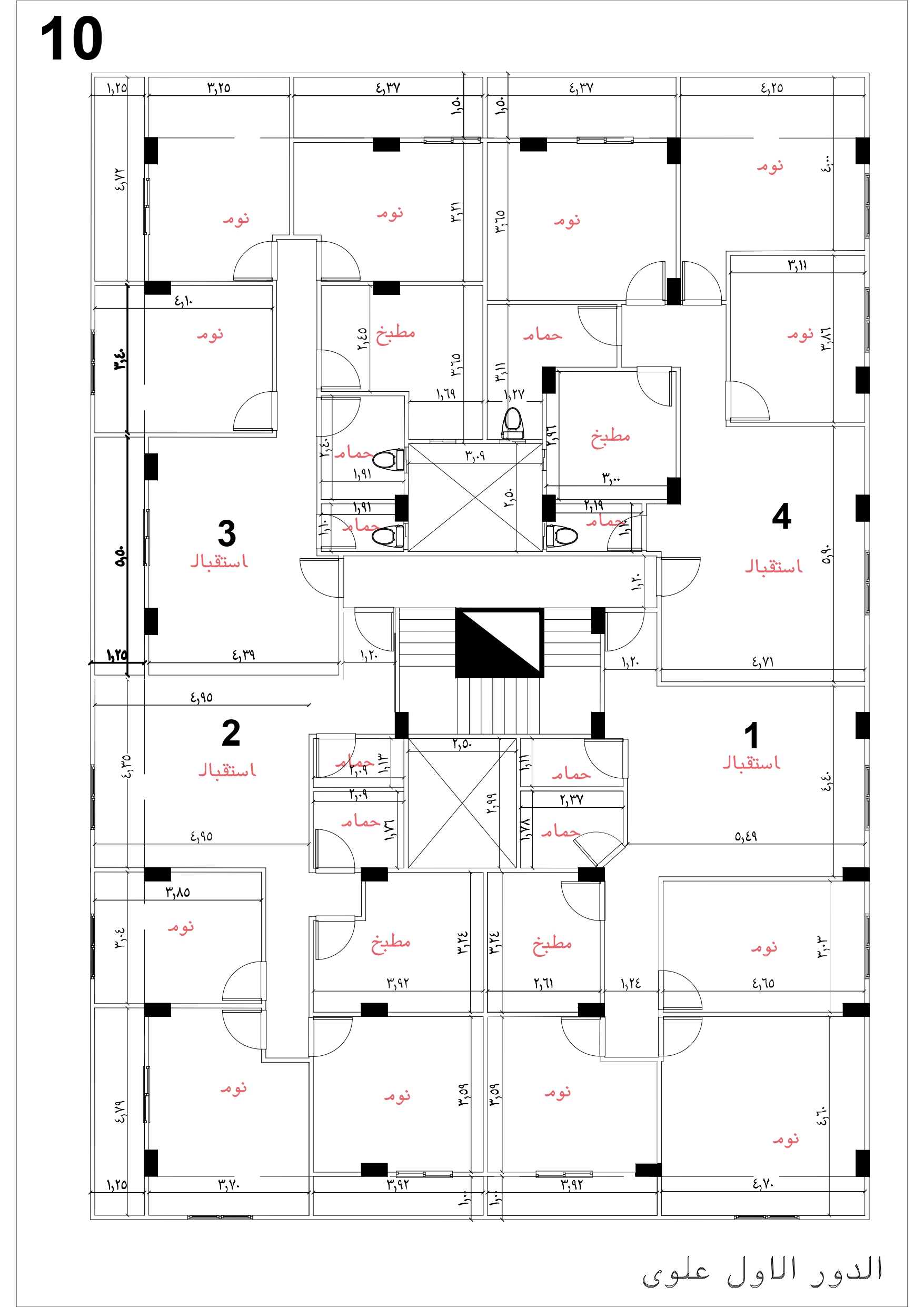
قطعة 10
المميزات
غرف النوم
1
الحمامات
1
غرف المعيشة
2
نوع التشطيب
نصف تشطيب
نظرة عامة على الوحدة
استثمر في راحة عائلتك داخل مشروع ميراج دمياط الجديدة، حيث الموقع المتميز في قلب دمياط الجديدة يجمع بين الهدوء والرقي وقربك من أهم المحاور والخدمات، ليمنحك أسلوب حياة متكامل يجمع بين الخصوصية والحيوية في آنٍ واحد.
وحدات سكنية بتصميمات عصرية وتشطيبات راقية، مع مساحات متنوعة تناسب مختلف الاحتياجات، سواء كنت تبحث عن شقة مريحة لأسرتك أو استثمار سكني بعائد مضمون، تم تخطيط المشروع بعناية ليضمن أفضل استغلال للمساحات، مع إطلالات مميزة وتهوية طبيعية توفر لك أقصى درجات الراحة.
استمتع ببنية تحتية متطورة، مساحات خضراء تضيف لمسة من الهدوء والجمال، وخدمات متكاملة توفر لك حياة سهلة وآمنة داخل مجتمع سكني متكامل.
فرصة سكنية واستثمارية واعدة تجمع بين الموقع الاستراتيجي والقيمة المتزايدة، لتمنحك استقرارًا اليوم وغدًا أكثر أمانًا.
احجز وحدتك السكنية الآن في ميراج دمياط الجديدة وابدأ حياة جديدة بمعايير أعلى من الراحة والتميز!
السعر يبدأ من
3,900,000 EGP
حاسبة الدفع
احسب أقساطك الشهرية
خيارات التمويل
استكشف خطط الدفع المرنة مع شركائنا المصرفيين
خطط الوحدة

الموقع
الاتجاهGoogle Maps API Key Required
Please add your Google Maps API key to continue
NEXT_PUBLIC_GOOGLE_MAPS_API_KEY=your_keyAdd this to your .env.local file
دمياط الجديدة
ميراچ
المستندات
معدل التحويل
قيمة البناء
EGP 0
القيمة الحالية
EGP 0
زادت قيمة الوحدة بنسبة 0.0% منذ بدء البناء





