محل تجاري - UN03F0C04
هيكل المشروع

سلسلة يوني
سلسلة يوني تعيد تعريف التطوير الذكي من خلال مفاهيم جريئة وتصميم مبتكر، لتقدم رؤية جديدة ومؤثرة في قلب سوق العقارات
عرض جميع تفاصيل المشروعيوني 3
المميزات
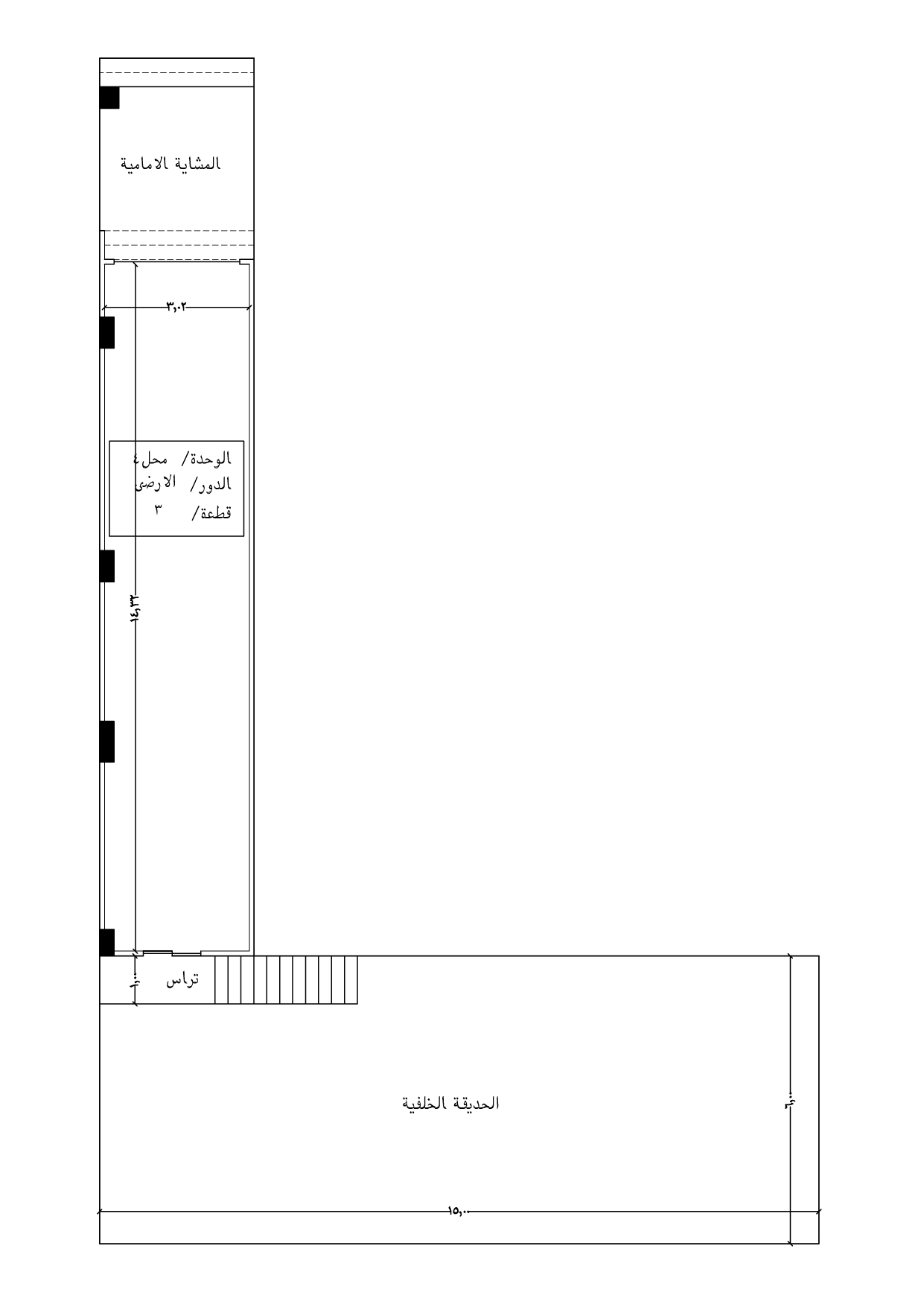
المشاية الأمامية
1
الحديقة الخلفية
1
تراس
1
نظرة عامة على الوحدة
فرصة استثمارية قوية لامتلاك وحدة تجارية في مشروع يوني
دلوقتي تقدر تمتلك وحدة تجارية في واحد من أقوى المواقع داخل مشروع يوني، حيث الحيوية والحركة المستمرة اللي تضمن لك أعلى معدلات جذب للعملاء وتعزيز انتشار نشاطك.
تصميمات عصرية بواجهات جذابة تبرز علامتك التجارية، مع تخطيط عملي يناسب المحلات التجارية، الكافيهات، العيادات، والمكاتب.
مساحات متنوعة ومرنة تتيح لك اختيار الأنسب لطبيعة نشاطك وتحقيق أقصى استفادة استثمارية.
تشطيبات عالية الجودة وبنية تحتية متكاملة تدعم نجاح مشروعك من اليوم الأول.
بيئة تجارية مزدهرة وكثافة سكانية قوية تمنحك قاعدة عملاء جاهزة وفرص نمو حقيقية.
لا تفوّت فرصة التواجد في مشروع واعد يجمع بين الموقع المتميز والعائد الاستثماري القوي.
احجز وحدتك الآن، وابدأ قصة نجاح جديدة مع أركس للتطوير العقاري!
السعر يبدأ من
10,600,000 EGP
حاسبة الدفع
احسب أقساطك الشهرية
خيارات التمويل
استكشف خطط الدفع المرنة مع شركائنا المصرفيين
خطط الوحدة

الموقع
الاتجاهGoogle Maps API Key Required
Please add your Google Maps API key to continue
NEXT_PUBLIC_GOOGLE_MAPS_API_KEY=your_keyAdd this to your .env.local file
دمياط الجديدة
سلسلة يوني
المستندات
معدل التحويل
قيمة البناء
EGP 6,360,000
القيمة الحالية
EGP 10,600,000
زادت قيمة الوحدة بنسبة 66.7% منذ بدء البناء



