مكتب إداري - KE1F15A7-8
هيكل المشروع

كينترو
برج كينترو | Kéntro Tower في الداون تاون بالعاصمة الإدارية الجديدة
برج كينترو تاور هو أول وأضخم تواجد لشركة اركس للتطوير العقاري خارج دمياط الجديدة، ويُعد المشروع الرئيسي للشركة في العاصمة الإدارية الجديدة، يقع البرج في قلب الداون تاون بالقطعة MU5-39، ويضم 307 وحدات تجارية وإدارية موزعة على 14 دوراً على مساحة 3,275 متر مربع، يجمع كينترو تاور بين الموقع الاستثنائي والتصميم العصري وأنظمة السداد المرنة (بدون مقدم وتقسيط حتى 9 سنوات)، ليكون فرصة استثمارية فريدة في أهم وجهة استثمارية في مصر اليوم.
عرض جميع تفاصيل المشروعكينترو تاور
المرافق والخدمات
نظرة عامة على الوحدة
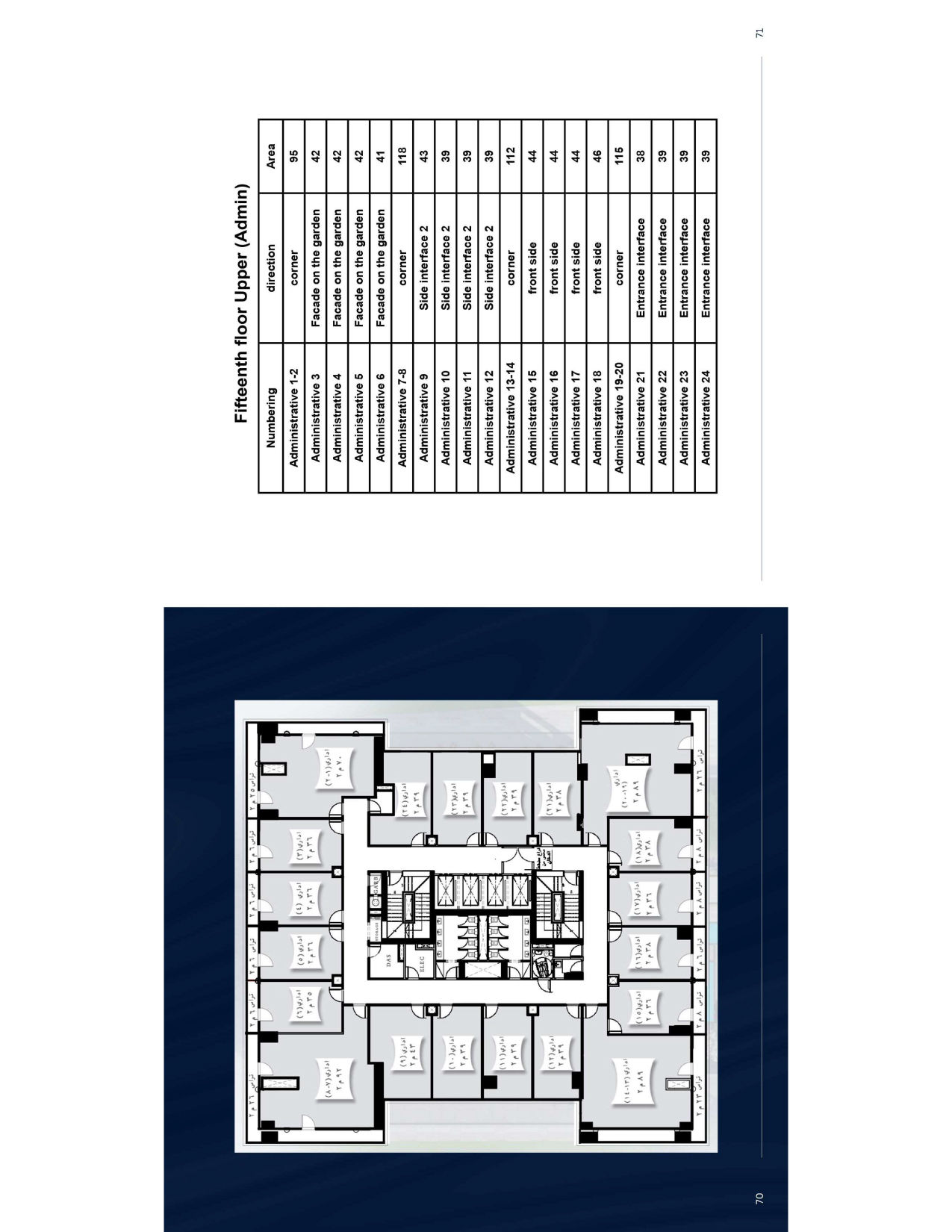
كود الوحدة: KE1F15A7-8
وحدة إدارية برج كينترو مميزة ضمن أحد أبراج العاصمة الإدارية التي أطلقتها شركة اركس للتطوير العقاري، تبلغ مساحة الوحدة 118 متر مربع، كما يبلغ سعر المتر فيها 90000 جنيه، وهي إحدى الوحدات الإدارية بالدور الخامس عشر لدى Kéntro Tower الذي ارتفع الإقبال عليه داخل سوق عقارات العاصمة الإدارية الجديدة 2026 منذ أن أطلقته شركة اركس للتطوير العقاري.
تفاصيل الوحدة
كود الوحدة: KE1F15A7-8
النوع: إداري
الدور: الخامس عشر
المساحة: 118 متر
سعر المتر: 90000 جنيه مصري
المطور العقاري: ARX Development
تقوم الشركة بتقديم مكاتب للبيع العاصمة الإدارية من خلال اركس كينترو الذي يقع داخل Down Town العاصمة وسط المقرات الحكومية والسفارات والشركات الكبرى مما يجعل من مكاتب وعيادات العاصمة الإدارية استثماراً مضمون المكسب والعائد، إضافة لتميز البرج بأنظمة أمن متطورة وتصميمات عصرية وواجهات زجاجية جذابة تمنح نشاطك حضوراً قوياً مما يجعل من هذه الوحدة فرصة مثالية لأي مشروع إداري يبحث عن مكتب 118 متر العاصمة الإدارية.
هذه الوحدة مناسبة لمن يبحث عن مكتب إداري للبيع العاصمة الإدارية ضمن أحد أبراج إدارية العاصمة المميزة باحترافية إدارة التشغيل التي تضمن دعم مستمر وتيسير دائم لأي مشروع إداري تابع له، من تطوير شركة اركس للتطوير العقاري ذات الخبرة البنائية التي تتجاوز 20 عاماً، وحجم مشاريع يتعدى 150 مشروع، مما يجعل قرار الشراء قرار آمن ومضمون.
الأسئلة الشائعة
ما مساحة الوحدة KE1F15A7-8؟
118 متر مربع.
ما سعر المتر في الدور الخامس عشر؟
90000 جنيه مصري.
في أي قطعة ودور؟
الدور الخامس عشر من إجمالي 16 طابق.
ما موقع برج كينترو؟
العاصمة الإدارية الجديدة.
ما الإطلالة؟
إطلالة بانورامية فاخرة من الأدوار العليا على العاصمة الإدارية الجديدة.
من المطور العقاري للمشروع؟
شركة اركس للتطوير العقاري.
السعر يبدأ من
10,620,000 EGP
حاسبة الدفع
احسب أقساطك الشهرية
خطط الوحدة

الموقع
الاتجاهGoogle Maps API Key Required
Please add your Google Maps API key to continue
NEXT_PUBLIC_GOOGLE_MAPS_API_KEY=your_keyAdd this to your .env.local file
العاصمة الاداريةالجديدة
كينترو
المستندات
تطور العمل والجدول الزمني
البناء is on track
Progress Timeline
الحفر
100%جاري تجهيز الأساسات
Last update: dec 28, 2025
البناء
65%مباني قيد التطوير
Last update: dec 28, 2025
التشطيبات
0%الأعمال النهائية قبل الانتهاء
Last update: dec 28, 2025







