Administrative office - AU1F2A37
Project Hierarchy

AURA
AURA Mall | Premier Commercial & Administrative Hub in New Damietta
AURA Mall is the most distinguished commercial and administrative hub developed by ARX Development in New Damietta, featuring 115 commercial and administrative units in a fully integrated contemporary design with sizes ranging from 17 m² to 134 m², AURA Mall combines a vibrant location with diversified services that meet the needs of business owners and investors, redefining the shopping and working experience in northern Egypt — with flexible pricing starting at 23,184 EGP/m² for mezzanine units up to 301,000 EGP/m² for premium facade units.
View all project detailsAURA MALL
Amenities & Facilities
Unit Overview
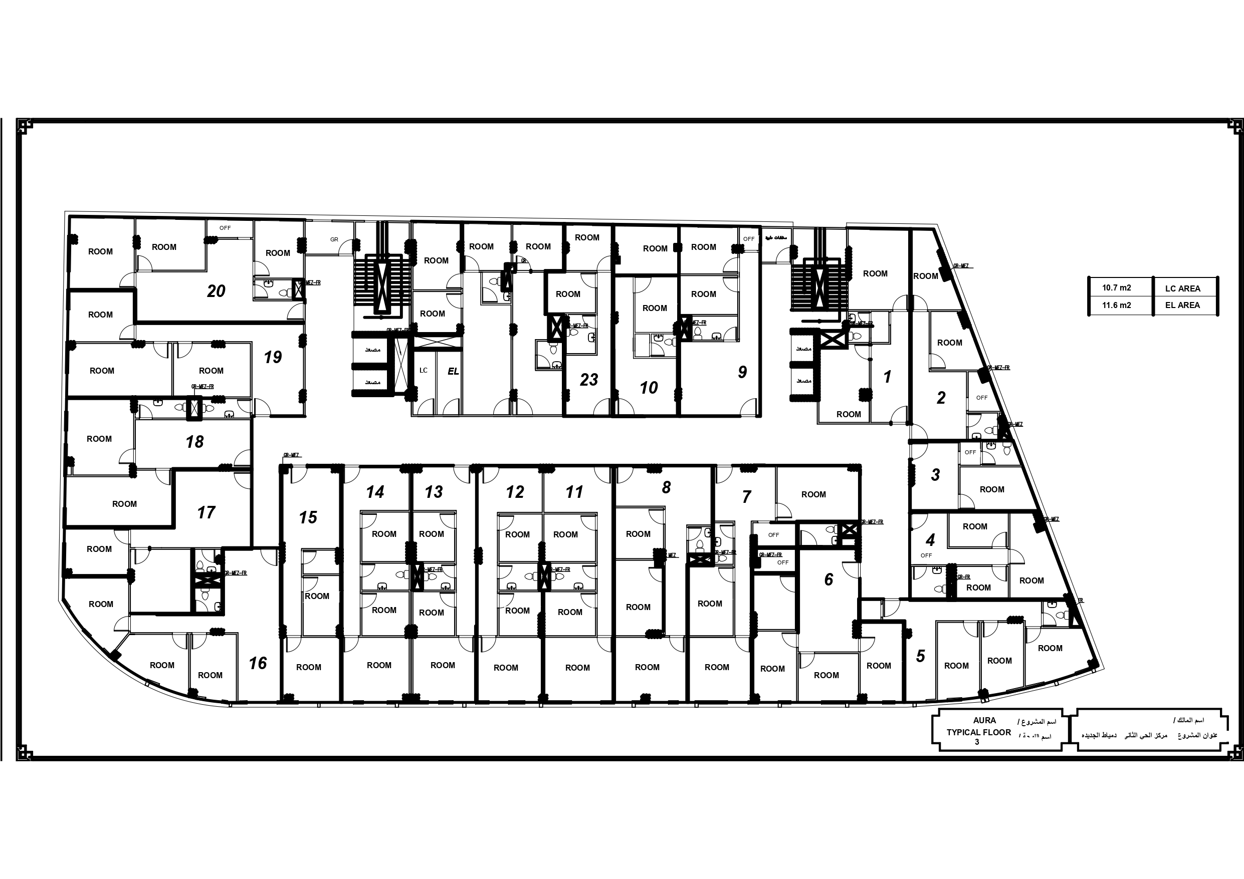
Unit Code: AU1F2A37
An administrative unit within the AURA Mall project in Damietta, developed by ARX Development, this office is one of the distinguished ARX offices in Damietta, known for its high-quality finishing standards within the New Damietta real estate market, it represents a valuable investment and administrative opportunity within AURA Mall, which features modern designs and attractive facades.
The unit is 79 square meters, located on the first floor, with a price per meter of EGP 66,000, this is considered a competitive price compared to office prices in Damietta in 2026, its prime location makes it an ideal choice for any administrative project seeking a 79 sqm office in AURA Mall, New Damietta.
This unit is an under-construction administrative unit in AURA Mall by ARX, delivered fully finished with high-quality specifications, its strategic location makes it a secure investment for anyone looking for a profitable project or an office for sale in AURA Mall, New Damietta.
The project also offers installment-based offices in Damietta with various area options suitable for all administrative uses, including units that can be used as medical clinics for sale in Damietta, with excellent location, area, and pricing.
Unit Details
Unit Code: AU1F2A37
Type: Administrative
Floor: First
Area: 79 sqm
Status: Under construction
Price per meter: EGP 66,000
Developer: ARX Development
FAQ
What is the area of the administrative office AU1F2A37?
The unit area is 79 square meters.
What is the price per meter?
EGP 66,000.
How many floors does AURA Mall have?
3 floors (Ground, Mezzanine, First).
What activities is this office suitable for?
Law office, medium-sized company, fully equipped dental clinic.
Who is the developer of AURA Mall?
ARX Development.
Price Starts From
5,214,000 EGP
Payment Calculator
Calculate your monthly installments
unit Plans

Location
get DirectionGoogle Maps API Key Required
Please add your Google Maps API key to continue
NEXT_PUBLIC_GOOGLE_MAPS_API_KEY=your_keyAdd this to your .env.local file
New Damietta
AURA
Documents
Development Progress & Time Line
Construction is on track
Progress Timeline
Drilling
100%Foundation preparation in progress
Last update: dec 28, 2025
Construction
65%Buildings under development
Last update: dec 28, 2025
Finishes
0%Final works before completion
Last update: dec 28, 2025






