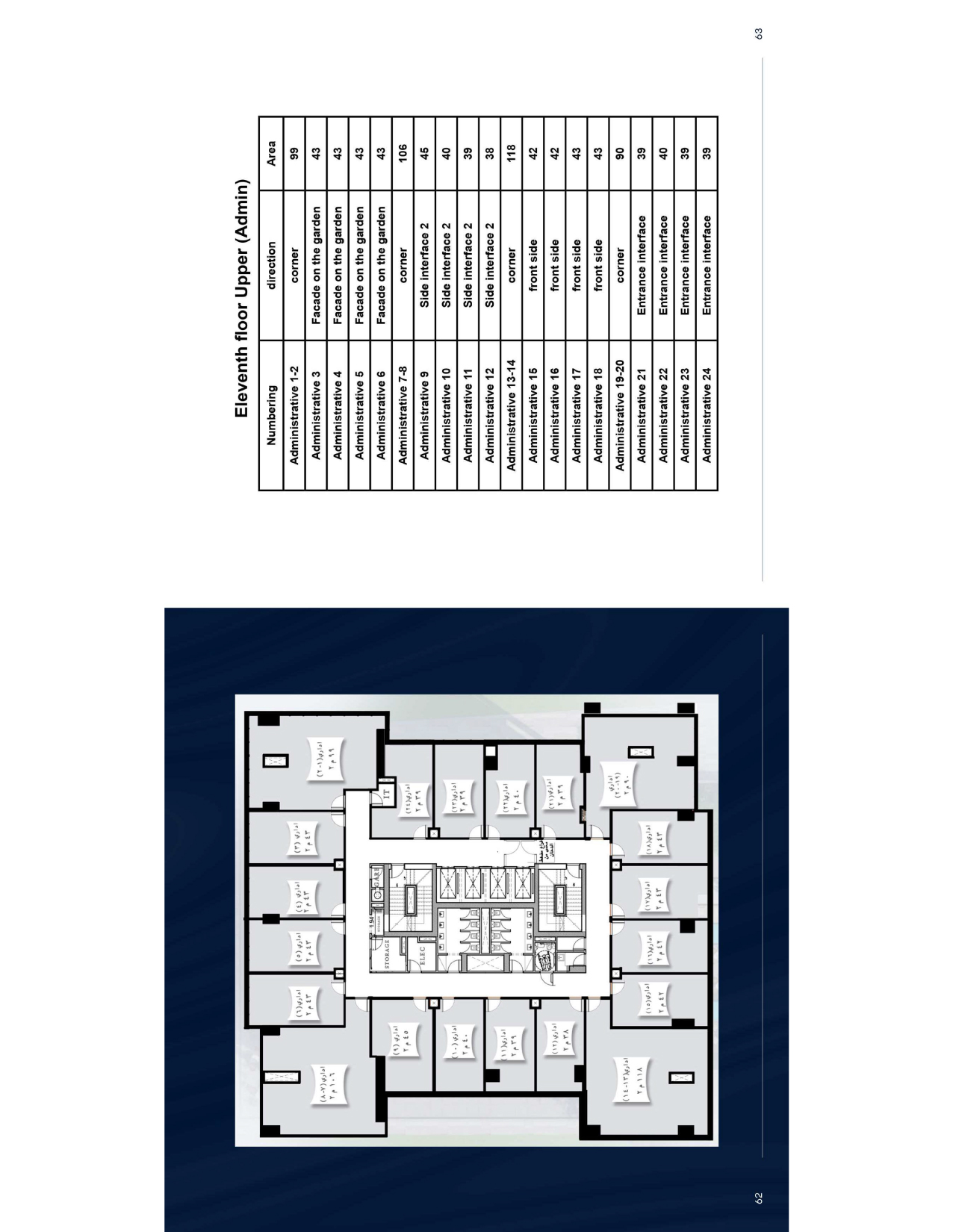
Administrative office - KE1F11A16
Project Hierarchy

Kéntro Tower
Kéntro Tower is an integrated multi-use project that includes commercial and administrative units. It is designed according to the latest modern architecture and construction systems, which rely on environmentally friendly smart building technology
Kéntro Tower has received certification for a wind study from our consultant, which confirmed its strength and quality as a wind-resistant tower, a feature that investors highly value
View all project detailsKentro Tower
Unit Overview
Bedrooms
3
Bathrooms
4
Living Rooms
3
Finishing Type
Super Lux
Unit Description
An exceptional opportunity to own an administrative unit in the Uni Project
Start your business from the heart of the vibrant Uni Project, in a strategic location that grants you a strong presence and a distinguished position for your administrative activity.
Modern designs with elegant façades and flexible spaces suitable for various activities and companies, with a practical layout that provides a professional and comfortable work environment.
High-quality finishes and integrated infrastructure ensure smooth operational performance and a secure investment.
Benefit from a dynamic work environment and high population density that enhance opportunities for success and expansion.
Don’t miss the opportunity to invest in a promising project that combines a prime location, strong investment returns, and sustainable growth.
Book your unit today and take your business to a new level with Arx Real Estate Developments!
unit Plans

Location
get DirectionGoogle Maps API Key Required
Please add your Google Maps API key to continue
NEXT_PUBLIC_GOOGLE_MAPS_API_KEY=your_keyAdd this to your .env.local file
New Administrative Capital
Kéntro Tower
Documents
Conversion Rate
Building Value
EGP 1,260,000
Current Value
EGP 3,780,000
The Unit Value Increased By 200.0% Since Start Building



