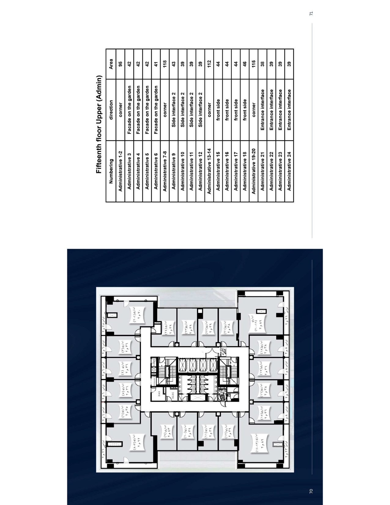
Administrative office - KE1F15A12
Project Hierarchy

Kéntro Tower
Kéntro Tower is an integrated multi-use project that includes commercial and administrative units. It is designed according to the latest modern architecture and construction systems, which rely on environmentally friendly smart building technology
Kéntro Tower has received certification for a wind study from our consultant, which confirmed its strength and quality as a wind-resistant tower, a feature that investors highly value
View all project detailsKentro Tower
features
Bedrooms
1
Bathrooms
3
Living Rooms
1
Finishing Type
Super Lux
Unit Overview
Invest with confidence and own your administrative unit in Kentro Tower project, one of the most prominent administrative developments that combines a prime location with modern design in the heart of a vibrant, high-traffic area, your presence in Kentro is not just a prestigious address for your company, but a strategic step that enhances your business visibility and supports its growth within a strong and integrated business environment.
The units are designed with modern glass facades and flexible practical spaces suitable for administrative offices, companies, clinics, and various service activities, with smart space utilization that ensures maximum operational efficiency and the best investment return, the project also features high-quality finishes, advanced security systems, modern elevators, and professional management that provides you with an organized and comfortable work environment from day one.
Choose the space that fits your ambition, and start your investment in an administrative tower that grants you a strong presence and real growth opportunities within a promising project.
Your unit in Kentro Tower is the beginning of greater success, book your unit now.
Price Starts From
3,139,500 EGP
Payment Calculator
Calculate your monthly installments
Financing Options
Explore flexible payment plans with our banking partners
unit Plans

Location
get DirectionGoogle Maps API Key Required
Please add your Google Maps API key to continue
NEXT_PUBLIC_GOOGLE_MAPS_API_KEY=your_keyAdd this to your .env.local file
New Administrative Capital
Kéntro Tower
Documents
Conversion Rate
Building Value
EGP 1,170,000
Current Value
EGP 3,139,500
The Unit Value Increased By 168.3% Since Start Building



