Residential apartment - MI10F2R06
Project Hierarchy

MIRAJ
MIRAJ Project | Premium Investment Opportunity in District 6, New Damietta
MIRAJ is a fully integrated investment and residential destination developed by ARX Development in District 6 of New Damietta, featuring 210 residential and commercial units sized from 13 m² up to 150 m², Located in the city's most prestigious district right next to international schools, MIRAJ offers the lowest residential price/m² across ARX's New Damietta portfolio (26,600 EGP/m²), making it the smartest choice for those seeking a savvy real estate investment in a premium location at a competitive price.
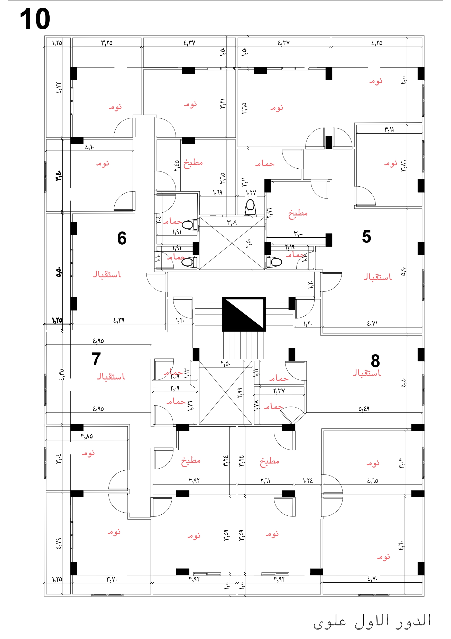
View all project detailsPiece 10
Amenities & Facilities
Unit Overview
Unit Code: MI10F2R06
A residential apartment in MIRAJ, Plot 10 distinguished within ARX Damietta apartments, with an area of 140 square meters, the price per square meter is 32400 EGP, it is one of the second floor units in the Miraj project, which has seen high demand in the New Damietta real estate market in 2026 since its launch by ARX Development, this unit features a prime location and space, making it ideal for those seeking a distinctive family residence in Miraj.
Unit Details
Unit Code: MI10F2R06
Type: Residential
Plot: 10
Floor: Second floor
Area: 140 sqm
Price per sqm: EGP 32400
Developer: ARX Development
A 140 sqm apartment in Miraj, set within a fully integrated residential community with well planned spaces that provide comfort and privacy for your family, the project is characterized by strong infrastructure and the availability of all essential facilities and daily services for its residents, it is developed by ARX Development, a company with over 20 years of construction experience and a portfolio exceeding 150 projects, along with extensive expertise in the real estate market.
The company is known for offering installment-based apartments in Damietta and under construction units in Miraj with varying sizes and more flexible payment plans compared to some apartment prices in Damietta, this makes the unit an exceptional opportunity for those looking for a Miraj apartment for sale in New Damietta with guaranteed value.
Frequently Asked Questions
What is the area of unit MI10F2R06?
140 square meters.
What is the price per square meter in Plot 10?
32400 EGP.
Which plot and floor is the unit in?
Plot 10, second floor.
How many plots are in the Miraj project?
7 plots, totaling 210 units.
What is the status of the unit?
Under construction.
Who is the project developer?
ARX Development.
Price Starts From
4,536,000 EGP
Payment Calculator
Calculate your monthly installments
unit Plans

Location
get DirectionGoogle Maps API Key Required
Please add your Google Maps API key to continue
NEXT_PUBLIC_GOOGLE_MAPS_API_KEY=your_keyAdd this to your .env.local file
New Damietta
MIRAJ
Documents
Development Progress & Time Line
Construction is on track
Progress Timeline
Drilling
100%Foundation preparation in progress
Last update: dec 28, 2025
Construction
65%Buildings under development
Last update: dec 28, 2025
Finishes
0%Final works before completion
Last update: dec 28, 2025









