Administrative office - UN26F1A03
Project Hierarchy

UNI
UNI SERIES | The First Integrated Real Estate Series in New Damietta
UNI SERIES is the first integrated real estate series developed by ARX Development in New Damietta, comprising 170 commercial, administrative, and residential units sized from 15 m² up to 165 m² across a collection of distinguished buildings, UNI SERIES redefines smart real estate development through innovative design and bold concepts that merge function with aesthetics, presenting a fresh and impactful vision in the heart of the New Damietta property market — with a competitive residential price of 35,000 EGP/m².
View all project detailsUNI 26
Amenities & Facilities
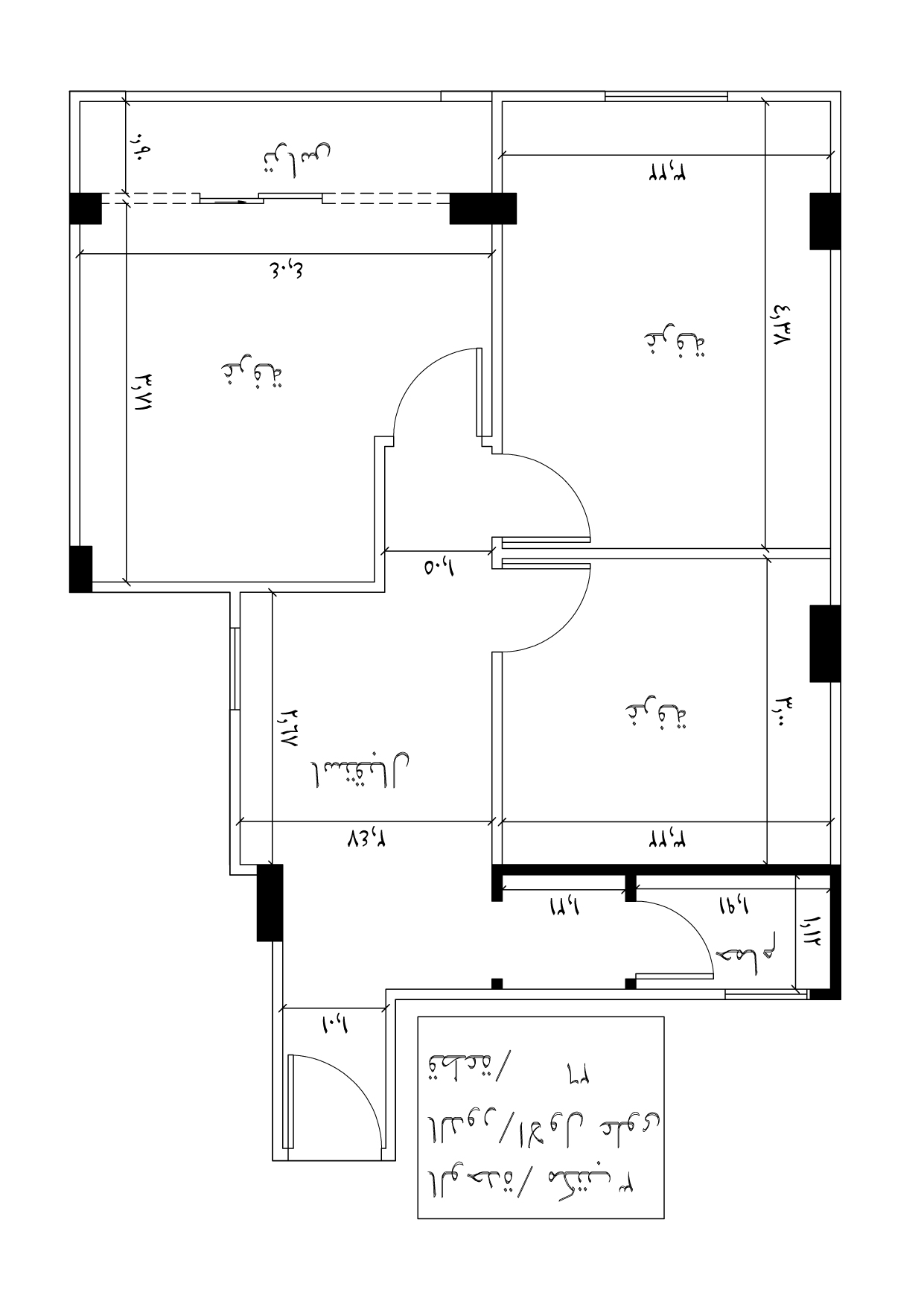
Unit Overview
Unit Code: UN26F1A03
This distinctive administrative unit is located in Uni 26 building within the Uni projects series in New Damietta City, offering an ideal opportunity to own an office in a prime location with modern design and integrated infrastructure, making it suitable for companies and offices seeking a ready-to-use professional space.
The unit spans 73 square meters and is situated on the mezzanine floor. It is fully completed and ready for immediate use, making it a perfect choice for startups, engineering offices, and dental clinics seeking a professional working environment.
The office features a practical layout and elegant façades that help highlight administrative activity, along with a flexible space that can be adapted to suit various office requirements.
Additionally, the unit’s location within the project provides easy access to essential services and integrated infrastructure, supporting smooth operations and a secure long-term investment.
The price per square meter is EGP 55,000, reflecting the investment value of the location and the services available within the project and surrounding area.
Unit Details
Unit Code: UN26F1A03
Building: Uni 26
Type: Administrative Office
Floor: Mezzanine
Area: 73 m²
Condition: Finished
Price per meter: EGP 55,000
Developer: ARX Development
The project is developed by ARX Development, a real estate developer with extensive experience in the Egyptian market, delivering diverse projects that combine quality and modern design, making this unit an ideal environment for administrative investment and stable returns.
FAQ
What is the area of administrative unit UN26F1A03?
The total area is 73 square meters.
What is the price per meter in Uni 26?
EGP 55,000.
What is the unit condition?
The unit is fully finished and ready for use.
What activities are suitable for this unit?
Suitable for a startup, engineering office, or dental clinic.
Who is the developer of the Uni project?
The developer is ARX Development, a real estate company with extensive experience in the Egyptian market.
Price Starts From
4,015,000 EGP
Payment Calculator
Calculate your monthly installments
unit Plans

Location
get DirectionGoogle Maps API Key Required
Please add your Google Maps API key to continue
NEXT_PUBLIC_GOOGLE_MAPS_API_KEY=your_keyAdd this to your .env.local file
New Damietta
UNI
Documents
Development Progress & Time Line
Construction is on track
Progress Timeline
Drilling
100%Foundation preparation in progress
Last update: dec 28, 2025
Construction
65%Buildings under development
Last update: dec 28, 2025
Finishes
0%Final works before completion
Last update: dec 28, 2025





