Commercial store - UN07F1C09
Project Hierarchy

UNI
UNI SERIES | The First Integrated Real Estate Series in New Damietta
UNI SERIES is the first integrated real estate series developed by ARX Development in New Damietta, comprising 170 commercial, administrative, and residential units sized from 15 m² up to 165 m² across a collection of distinguished buildings, UNI SERIES redefines smart real estate development through innovative design and bold concepts that merge function with aesthetics, presenting a fresh and impactful vision in the heart of the New Damietta property market — with a competitive residential price of 35,000 EGP/m².
View all project detailsUNI 7
Amenities & Facilities
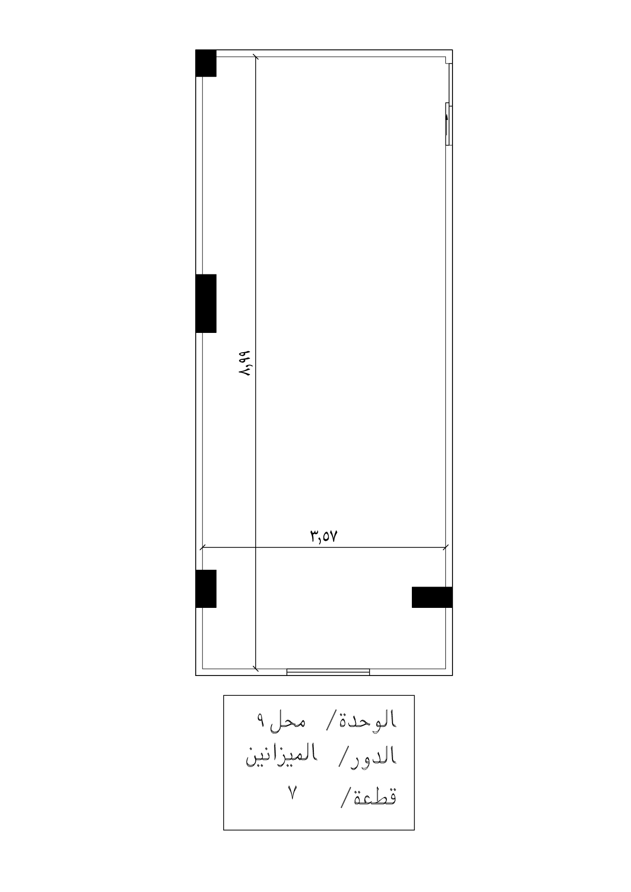
Unit Overview
Unit Code: UN07F1C09
This commercial unit is located in Uni 7 building within the Uni series in New Damietta City, offering an excellent opportunity to start a successful business in a vibrant location with high population density and continuous customer flow.
The unit spans 40 square meters and is situated on the mezzanine floor. It is fully completed with high-quality finishing and ready for immediate operation, making it an ideal choice for small business owners and entrepreneurs seeking a quick and efficient start.
The shop features a modern design with an attractive façade that enhances visibility and attracts customers, along with a practical layout that allows flexible use of the space for various commercial activities.
Additionally, the unit benefits from easy access to essential services and integrated infrastructure within the project, supporting business stability and growth.
The price per square meter is EGP 75,000, representing a strong investment value within a well-developed project in New Damietta.
Unit Details
Unit Code: UN07F1C09
Building: Uni 7
Type: Commercial Shop
Floor: Mezzanine
Area: 40 m²
Condition: Finished
Price per meter: EGP 75,000
Developer: ARX Development
The project is developed by ARX Development, a real estate developer known for delivering high-quality projects with modern designs that meet market needs.
The unit is located in New Damietta, a modern coastal city with advanced infrastructure and well-planned communities, making it an ideal environment for commercial investment and stable returns.
FAQ
What is the area of commercial unit UN07F1C09?
The total area is 40 square meters.
What is the price per meter in Uni 7?
The price per meter is EGP 75,000.
What is the unit condition?
The unit is fully finished and ready for operation.
What activities are suitable for this unit?
Suitable for a small restaurant, supermarket, beauty salon, or showroom.
Who is the developer of the project?
The developer is ARX Development, a trusted real estate developer with solid experience in the Egyptian market.
Price Starts From
3,000,000 EGP
Payment Calculator
Calculate your monthly installments
unit Plans

Location
get DirectionGoogle Maps API Key Required
Please add your Google Maps API key to continue
NEXT_PUBLIC_GOOGLE_MAPS_API_KEY=your_keyAdd this to your .env.local file
New Damietta
UNI
Documents
Development Progress & Time Line
Construction is on track
Progress Timeline
Drilling
100%Foundation preparation in progress
Last update: dec 28, 2025
Construction
65%Buildings under development
Last update: dec 28, 2025
Finishes
0%Final works before completion
Last update: dec 28, 2025





