Commercial store - UN11F0C01
Project Hierarchy

UNI
UNI SERIES | The First Integrated Real Estate Series in New Damietta
UNI SERIES is the first integrated real estate series developed by ARX Development in New Damietta, comprising 170 commercial, administrative, and residential units sized from 15 m² up to 165 m² across a collection of distinguished buildings, UNI SERIES redefines smart real estate development through innovative design and bold concepts that merge function with aesthetics, presenting a fresh and impactful vision in the heart of the New Damietta property market — with a competitive residential price of 35,000 EGP/m².
View all project detailsUNI 11
Amenities & Facilities
Unit Overview
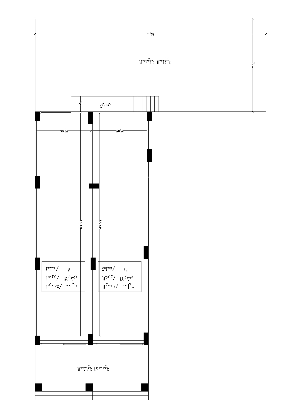
Unit Code: UN11F0C01
This distinctive commercial unit is located within Uni 11 building as part of the Uni projects series in New Damietta City, and represents a strong opportunity for those looking to invest in a commercial shop for sale in New Damietta within a strategic location characterized by high population density and continuous customer flow, enhancing the chances of success for any business activity.
The unit comes with an area of 65 square meters on the ground floor, and it is considered one of the best available options within Uni 11 commercial unit, as it provides direct exposure to commercial activity, making it ideal for attracting attention and achieving high operating rates.
The shop is under construction within Uni series shops, featuring a modern design and an attractive façade that highlights the business professionally, along with a spacious layout suitable for various activities such as a large restaurant, supermarket, furniture showroom, bank, or a major pharmacy, making it an ideal choice for those looking for a 65 sqm shop in Damietta with strong investment potential.
The project offers integrated infrastructure and business-supporting services, in addition to a vibrant location within New Damietta real estate that ensures continuous customer flow, enhancing long-term investment value.
The price per square meter is EGP 200,000, reflecting competitive value within shop prices in Damietta, especially as part of under construction shops that offer strong capital appreciation opportunities, along with the advantage of installment commercial units.
Unit Details
Unit Code: UN11F0C01
Building: Uni 11
Type: Commercial Shop
Floor: Ground
Area: 65 m²
Condition: Under Construction
Price per meter: EGP 200,000
Developer: ARX Development
The project is developed by ARX Development, one of the leading companies in real estate investment in the Egyptian market, delivering high-quality projects that combine strategic locations, modern design, and premium standards.
The unit is located in New Damietta, a modern city witnessing continuous growth in demand for commercial activities, making it an ideal destination for strong and stable returns.
FAQ
What is the area of commercial unit UN11F0C01?
The total area is 65 square meters.
What is the price per meter in Uni 11?
The price per meter is EGP 200,000.
What is the unit condition?
The unit is under construction.
What activities are suitable for this unit?
Suitable for a large restaurant, supermarket, furniture showroom, bank, or a major pharmacy.
Who is the developer of the Uni series project?
The developer is ARX Development.
Price Starts From
13,000,000 EGP
Payment Calculator
Calculate your monthly installments
unit Plans

Location
get DirectionGoogle Maps API Key Required
Please add your Google Maps API key to continue
NEXT_PUBLIC_GOOGLE_MAPS_API_KEY=your_keyAdd this to your .env.local file
New Damietta
UNI
Documents
Development Progress & Time Line
Construction is on track
Progress Timeline
Drilling
100%Foundation preparation in progress
Last update: dec 28, 2025
Construction
65%Buildings under development
Last update: dec 28, 2025
Finishes
0%Final works before completion
Last update: dec 28, 2025





